| Data |
|
|---|
家づくりのきっかけはプライベートなサウナ空間。 その延長には外気浴でリラックスできたり、友人を招いてBBQもでき、時には一人でゆっくりと過ごせるような中庭空間のあるお家。
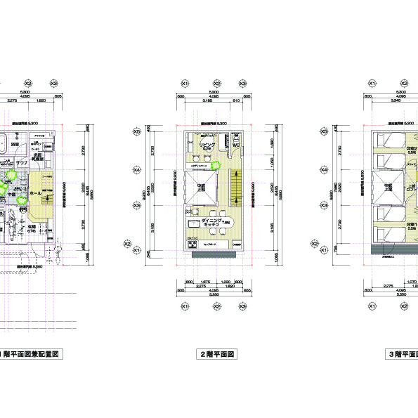
家の中心となる位置に中庭を設け、それを囲むようにお施主さまの使い勝手や理想に沿うように考え、ご提案させて頂きました。狭小密集市街地という立地条件の中で、隣地側の窓は極力無くし各部屋の窓は中庭へ大きく解放。プライバシーを保ちながら開放感・明るさ・通風が確保出来るようにし、中庭を介して各部屋の視線が通ることで、ひろがりの感じられるような計画に。
中庭に面する位置にはお施主様のご要望の二人用のサウナユニットが入るスペースを設けています。浴室とは分離したタイプとすることで、長時間サウナに籠っていても、他のご家族が浴室を利用できるように配慮し、中庭にはサウナの後のクールダウンスペースとして水風呂や外気浴スペースを配置し、壁で取り囲まれた中庭に設ける事により、周囲からの視線を遮りながらも空を望むことが出来る、癒しの空間となります。
一部にはバーベキューグリルを置いて頂けるスペースを設け、土間玄関との一体利用により約10帖程の広々としたスペースを確保し、ご家族やご友人を招いてのホームパーティーもできるように考えています。
玄関はDIYなどにもお使い頂けるように、広めの土間玄関。
手動シャッターを設けて、バイクや自転車などの保管場所としてもお使い頂け、
防犯にも配慮。 玄関スペースに設けた扉付の収納は物置代りとして、季節もの家電等の大きめの備品も収納して頂けます。一部にシンクを設けており、中庭や広めの土間玄関を一体的に利用してBBQ等のちょっとした洗い物にお使い頂けます。
靴箱は扉の一部を姿見鏡付として、靴を含めた全身をご確認頂けるようにご提案。一部はカウンターにする事で、ディスプレイスペースとしています。
洗面室は奥に洗濯乾燥スペースを設けています。
天井付きの物干しパイプやアイロン台としてもお使い頂けるカウンターを設けており、収納ボックス等を置いて頂く事で、洗濯・乾燥・収納がこの場所で完結し、効率的な家事動線としてプランしています。カーテンで緩やかに仕切る事で、普段使いの衣類は干したままとし、お使いの際にすぐに手に取って頂けます。
また、階段下のスペースを有効に活用し、高さのある部分はコート等をかけて頂けるハンガーを設け、低い部分はオープン棚とし、収納兼ディスプレイとしてお使い頂けます。
そして寝室は最小限に。寝るだけを想定しており、各室はベッドが2台置ける広さとし、少し広めのクローゼットを設け、洋室2からは収納としてお使い頂けるようなロフト空間を計画に。
キッチンの横にはワークスペースを設けており、自宅での仕事スペースや子供ためのスタディスペースとして、家族それぞれに時間を過ごしながらもお互いの声がすぐに届く距離感で過ごせる間取りを計画させて頂きました。













